Om ejendommen
Ejendommen er beliggende i naturskønne omgivelser i den lille by Præstbro tæt på Dronninglund. Området byder på flere rekreative muligheder, herunder gåture i naturen, overnatning i shelter og fisketure ved åen. Lige uden for ejendommen findes et busstoppested med gode forbindelser til Aalborg, Frederikshavn, Sæby og Dronninglund.
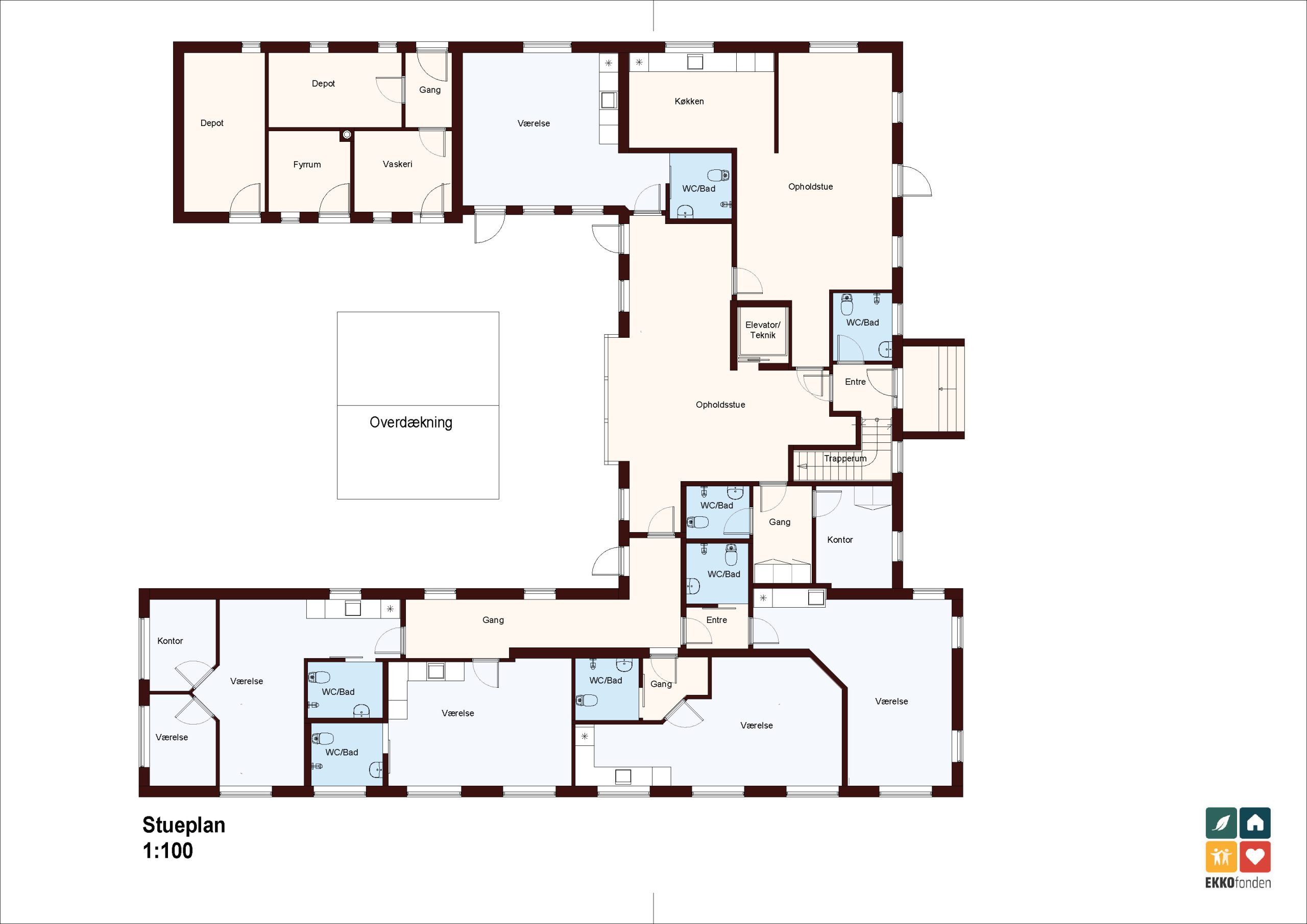
Ejendommen består af et hovedhus samt et dobbelthus med to separate lejligheder. Det samlede grundareal udgør 2.439 m².
Hovedhuset, der er opført i 1,5 plan, har et samlet boligareal på 662 m². Huset rummer fælleskøkken, spisetue, TV-stue, samtalerum og seks lejligheder samt personalefaciliteter. Dobbelthuset rummer to lejligheder på hver 66 m², der hver indeholder køkken, stue, værelse og stort badeværelse. Dertil er der udgang til haven.
Ejendommen har en stor have samt et hyggeligt gårdmiljø, der indbyder til sociale aktiviteter som grill, sommerspil og hygge omkring bål.
Der er god mobildækning og mulighed for fibernet på adressen.
Ejendommens historie
Ejendommen på Hovedgaden 1A har gennem årene været en markant bygning i Præstbros historie og har altid været anvendt til sociale formål.
Tidligere fungerede ejendommen som Præstbro Ældrecenter, der frem til 2015 var hjem for ældre borgere i lokalområdet. Efterfølgende blev bygningen omdannet til et kulturhus med overnatningsmuligheder for turister og fortsatte derved traditionen med at skabe rum for fællesskab og omsorg.
Ejendommen har gennem generationer været et symbol på social ansvarlighed og støtte i lokalsamfundet.
Detaljer om lejemålet
Beliggenhed: Præstbro, Dronninglund
Udlejningsstatus: Ledig
Anvendelse:
- Botilbud med plads til 10 borgere
- 10 badeværelser
Boligareal: 662 m² (hovedhus) + 2 x 66 m² (dobbelthus)
Grundareal: 2.439 m²
For yderligere informationer om lejemulighederne kontakt:






























